詳細介紹
產品用途ZQDF(Y)系列蒸汽(液用)電磁閥是工業過程自動化控制系統用的執行器,它在接受電控信號后能自動開啟或關閉閥門,實現對管道中流體介質的通斷或流量調節控制,從而對系統中的溫度、流量、壓力等參數進行自動調節或遠程控制。本系列電磁閥產品可廣泛用于紡織、印刷、化工、塑料、橡膠、制藥、食品、建材、機械、電器、表面處理等生產和科研部門以及浴室、食堂、空調等人們日常生活設施中。ZQDF系列主要用于空氣、蒸汽、煤氣等氣體介質的控制;ZQDF-Y系列電磁閥主要用于自來水、蒸餾水、冷凍鹽水、電鍍廢液等液體介質,同時也用于黏度小于4E的油類。 主要技術參數
安裝尺寸
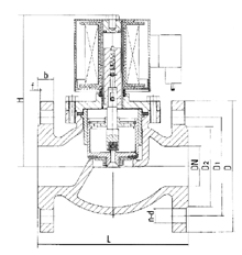
產品尺寸
| |||||||||||||||||||||||||||||||||||||||||||||||||||||||||||||||||||||||||||||||||||||||||||||||||||||||||||||||||||||||||||||||||||||||||||||||||||||||||||||||||||||||||||||||||||||||||||||||||||||||||||||||||||
溫馨提示:“ZQDF蒸汽電磁閥”所有文字、數據、圖片均只適用于參考。
如需與實物相吻合的性能參數、結構尺寸參數等詳情請來電來函索取。
電話:021-68103333 傳真:021-51686322
如需與實物相吻合的性能參數、結構尺寸參數等詳情請來電來函索取。
電話:021-68103333 傳真:021-51686322

軟密封蝶閥視頻介紹





掃一掃關注我們